吉川市の不動産情報 オレンジハウス


埼玉県吉川市 大字保 新築戸建

販売価格 3980万円 建物面積 99.62m²
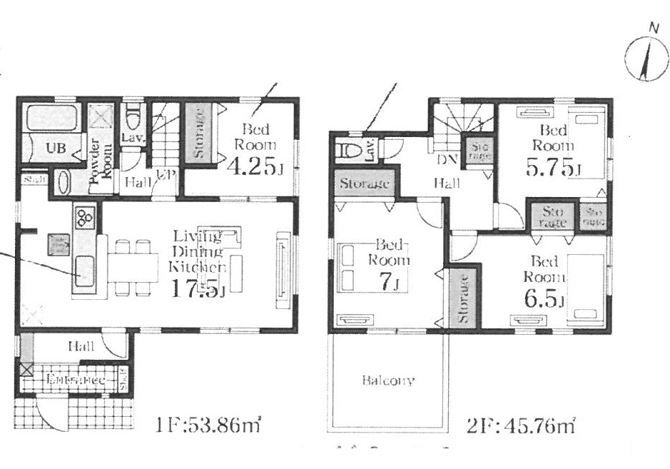
階数 地上2階 間取り 4LDK
建物構造 木造 取引態様 仲介
所在地 埼玉県吉川市 大字保
交通 JR武蔵野線吉川駅 徒歩15分
お問合せ候補に追加
 

物件写真


物件詳細  

物件種別 新築戸建 間取り 4LDK
価格 3980万円 建築年月 2025/10
建物構造 木造 階数(地下) 地上2階
土地面積(区画面積) 113.47m² 土地権利 所有権
用途地域 第一種中高層住居専用 都市計画 市街化区域
現況 空家 引渡・入居時期 即時
セットバック 私道負担
間取り内訳 1階LDK17.5畳1室  1階洋室4.25畳1室  2階洋室7畳1室  2階洋室6.5畳1室 2階洋室5.75畳1室     
周辺環境
設備・条件
小学校 北谷小学校 中学校 南中学校
物件番号 100136249220 情報有効期限 2025/12/11
※1号棟

お問合せ物件番号 100136249220

 

問合せ先

有限会社オレンジハウス 〒342-0041 埼玉県吉川市大字保717-2 奥村荘103号 TEL 048-981-4646 FAX 048-981-4677 営業時間 AM9:00~PM6:00 定休日 毎週水曜日 宅建免許番号: 埼玉県知事(5) 第19728号

問い合わせフォーム

お名前 (必須)

メールアドレス (必須)

題名

メッセージ本文

pagetop