吉川市の不動産情報 オレンジハウス


埼玉県吉川市 きよみ野4丁目 中古マンション

販売価格 2690万円 専有面積 80.83m² (壁芯)
階数 1階 / 地上8階 間取り 3LDK
築年月 1999/11 取引態様 仲介
所在地 埼玉県吉川市 きよみ野4丁目
交通 JR武蔵野線吉川駅 バス(市役所・おあしす前 16分 停歩1分)
お問合せ候補に追加
 

物件写真


物件詳細  ウッドパーク吉川きよみ野C棟

物件種別 中古マンション 間取り 3LDK
価格 2690万円 専有面積 80.83m² (壁芯)
共益費・管理費 11300円 バルコニー面積
修繕積立金 9810円 向き 南東
階数 1階 / 地上8階 建物構造 RC
管理人 管理人日勤  管理形態 全部委託 
建築年月 1999/11 新築・未入居区分 中古
現況 空家 引渡・入居時期 即時
駐車場区分 空有 駐車場料金 2500円
駐車場備考 空き状況は要確認
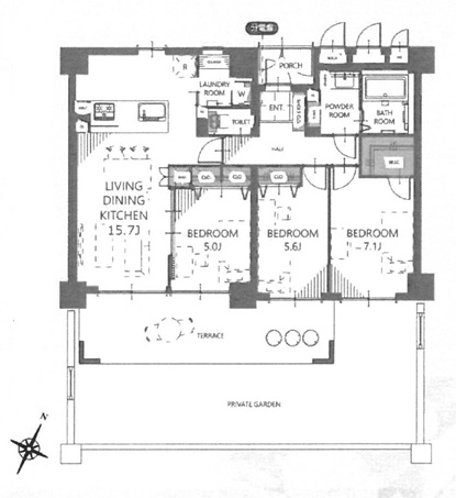
間取り内訳 1階洋室7.1畳1室  1階洋室5.6畳1室  1階洋室5畳1室  1階LDK15.7畳1室      
周辺環境
設備・条件
小学校 栄小学校 中学校 中央中学校
物件番号 100136627611 情報有効期限 2026/01/29

お問合せ物件番号 100136627611

 

問合せ先

有限会社オレンジハウス 〒342-0041 埼玉県吉川市大字保717-2 奥村荘103号 TEL 048-981-4646 FAX 048-981-4677 営業時間 AM9:00~PM6:00 定休日 毎週水曜日 宅建免許番号: 埼玉県知事(5) 第19728号

問い合わせフォーム

お名前 (必須)

メールアドレス (必須)

題名

メッセージ本文

pagetop