吉川市の不動産情報 オレンジハウス


埼玉県吉川市 保1丁目 中古マンション

販売価格 3390万円 専有面積 72.3m² (壁芯)
階数 9階 / 地上14階 間取り 3LDK
築年月 1997/01 取引態様 仲介
所在地 埼玉県吉川市 保1丁目
交通 JR武蔵野線吉川駅 徒歩5分
お問合せ候補に追加
 

物件写真


物件詳細  セレスト吉川

物件種別 中古マンション 間取り 3LDK
価格 3390万円 専有面積 72.3m² (壁芯)
共益費・管理費 16180円 バルコニー面積 24.01m²
修繕積立金 17710円 向き
階数 9階 / 地上14階 建物構造 その他
管理人 管理人日勤  管理形態 全部委託 
建築年月 1997/01 新築・未入居区分 中古
現況 空家 引渡・入居時期 即時
駐車場区分 駐車場料金
駐車場備考 駐車場有(平面・機械式:月額11500円~15500円)空き状況は要確認。
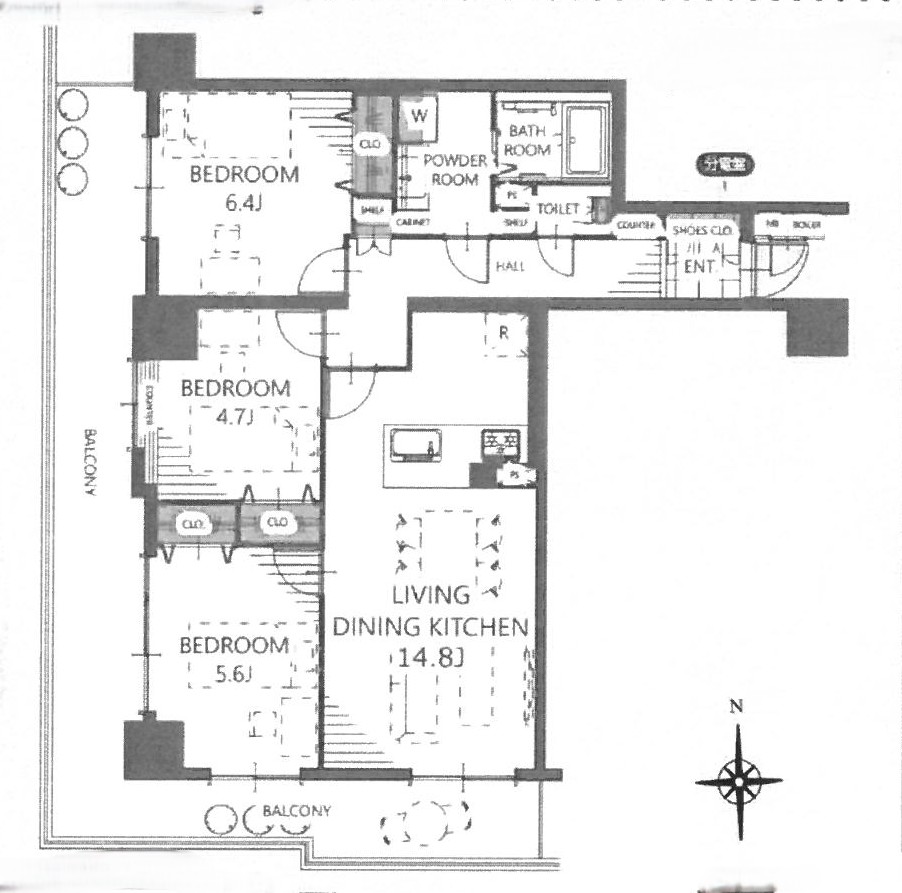
間取り内訳 9階洋室6.4畳1室  9階洋室5.6畳1室  9階洋室4.7畳1室  9階LDK14.8畳1室      
周辺環境
設備・条件 構造/SRC・RC造
小学校 吉川小学校 中学校 南中学校
物件番号 100136411513 情報有効期限 2026/01/29

お問合せ物件番号 100136411513

 

問合せ先

有限会社オレンジハウス 〒342-0041 埼玉県吉川市大字保717-2 奥村荘103号 TEL 048-981-4646 FAX 048-981-4677 営業時間 AM9:00~PM6:00 定休日 毎週水曜日 宅建免許番号: 埼玉県知事(5) 第19728号

問い合わせフォーム

お名前 (必須)

メールアドレス (必須)

題名

メッセージ本文

pagetop